
Hermineh Décoration souhaite vous donner l’envie de rentrer et d’être chez soi. Cela vous permettant de profiter de vos espaces et de vous apporter énergie positive, repos et réconfort.
Grâce à notre approche personnalisée, il est désormais possible de créer un intérieur unique tout en étant tendance.
Nous mettons des mots et des images sur vos idées pour leur donner corps et nous vous aidons à identifier les points clés pour les concrétiser.
Tant dans notre relation client que dans nos inspirations décos, nous souhaitons faire le lien, adapter et lier les goûts et les idées. De plus, cette relation nous permettra de nous enrichir les uns des autres.
L’histoire de la créatrice
La décoratrice en moi est née il y a longtemps ou a peut-être bien toujours existé. Petite, déjà, j’aimais ré agencer, déplacer, disposer, redisposer les objets dans la maison de mes parents, et faire de mon environnement un endroit harmonieux.
En grandissant, il s’agissait alors pour moi de scruter tous les détails des émissions de décoration, mais aussi de parcourir les galeries d’art, les magasins de meubles et tout ce qui pouvait embellir l’environnement intérieur de notre quotidien.
Artiste peintre diplômée, le dessin (les perspectives, les lignes de fuite, les couleurs, les gammes), la peinture ainsi que l’histoire de l’art n'avaient que peu de secrets pour moi.
Ma formation de décoration d’intérieur m’a permis de compléter les connaissances nécessaires pour exercer ce métier : mon métier rêvé. Elle a donné une dimension très concrète à mon sens artistique, en lui ajoutant les notions d’artisanat et d’architecture.

Maison à Champigny-sur-Marne








HERMINEH
Décoration

Maison à Champigny-sur-Marne

Rez-de-chaussé
Matériaux




Carreaux de ciment

Bois
Une maison avec charme à l’ancienne, chaleureuse et accueillante.
Décoration élégante, au décor moderne.
Circulation fluide avec les espaces définis.
Création du salon dans une nouvelle extension de la maison.











HERMINEH
Décoration
Maison à Champigny-sur-Marne

Premier étage
Matériaux


Carrelage

Bois

Carrelage gris


Carrelage
Décoration moderne avec des couleurs douces et accueillantes.
L’espace est rafraîchi et repensé.
Création de la suite parental dans la nouvelle extension de la maison.




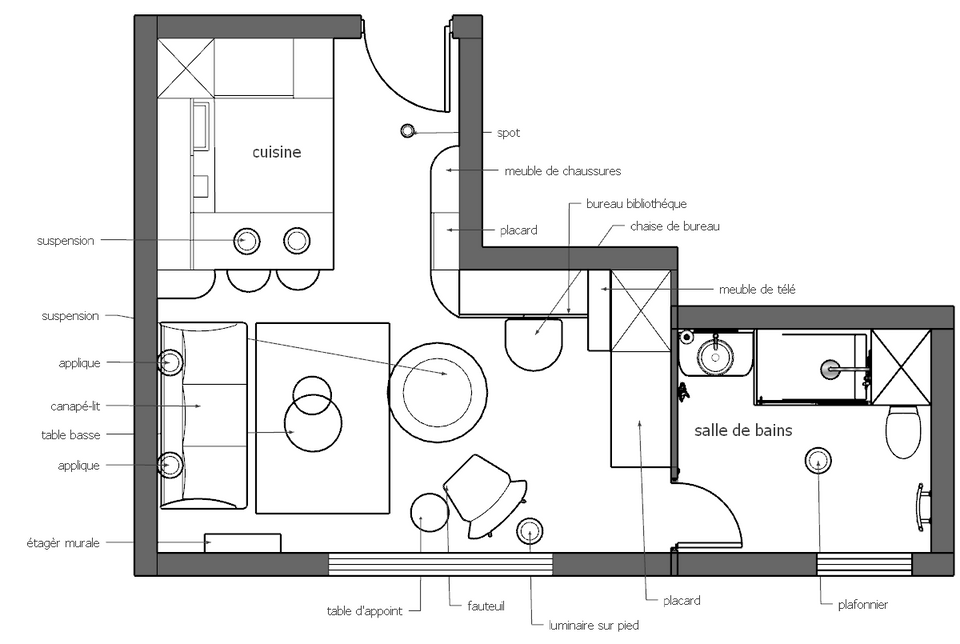
Studio à Alfortville







HERMINEH
Décoration
Studio à Alfortville

Matériaux

blanc laqué

tissu gris

Bois

Carrelage gris

Métal noir

Décoration design, élégante au décor moderne, sobre et chic.

Les espaces sont définis et la circulation est fluide.
Petite cuisine fonctionnelle avec coin de repas.
Meuble multifonction sur mesure.
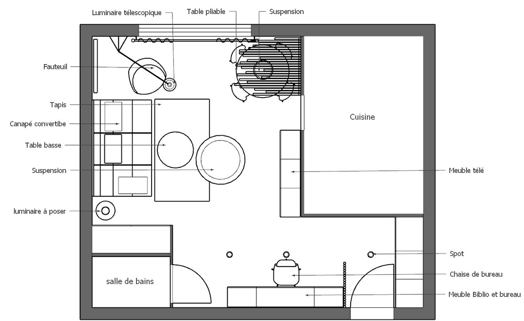
Studio à Paris






HERMINEH
Décoration
Studio à Paris

Matériaux

beige gris laqué

tissu blanc

Bois

Verre gris

Métal noir


Style scandinave épuré et accueillant.
Décoration design, au décor minimaliste et couleurs douces.
Espace rafraîchi et repensé.

La visite conseil déco
La visite conseil déco est un rendez-vous de 2h qui se déroule de la manière suivante :
Je viens vous rendre visite chez vous pour partager avec vous différentes inspirations et préciser vos envies.
Nous échangeons sur vos goûts, vos besoins en termes de mobilier, d’accessoires ; vos idées et vos goûts en termes de style, de matières, de couleurs ou encore sur ce que vous souhaitez conserver ou absolument changer et bien sûr votre budget.
Suite à cette prise de brief, dans un délai d’une semaine, je vous fais parvenir par mail un compte-rendu résumant tous les conseils donnés lors de la visite ainsi qu’une planche d’ambiance.
Cette planche vous permet ensuite de démarrer votre shopping ou la re décoration de votre espace en elle-même.
Planche Mobilier


HERMINEH
HERMINEH

Décoration
Décoration
Salon
design, élégant et accueillant





12

1
6

13
5



7

14
15

16
2
3
10

4



8

11
17
9
1.https://www.fleux.com/outlet/applique-arum-h-127-cm-noir.html
2.https://www.laredoute.fr/ppdp/prod-538417399.aspx#searchkeyword=Miroir%20rond&shoppingtool=search
3.https://www.laredoute.fr/ppdp/prod-549195457.aspx#searchkeyword=Tapis%20berberes&shoppingtool=search
4.https://www.silvera.fr/eshop/canape-silhouette-3-places-hay-7181-15361.html
5.https://www.muuto.com/product/Ambit-Pendant-Lamp--p2449/26034/
6.https://www.fleux.com/miroir-framed-111-8-x-44-5-cm-taupe.html
7.https://www.fleux.com/miroir-framed-59-x-44-cm-taupe.html
8.https://www.bolia.com/fr-fr/les-produits/24-709-03_4665/
9.https://www.fleux.com/set-de-2-tables-tables-gigognes-nesting-charcoal-o-92-cm.html
10.https://www.madura.com/products/rideau-a-oeillets-noirs-gianni-petrole?variant=42105191792867
11.https://www.fleux.com/inspirations/coups-de-coeur/table-d-appoint-lato-ln8-blanc.html
12.https://www.fleux.com/suspension-vertigo-nova-o-110-cm-noir.html
13.https://www.fleux.com/etagere-string-pocket-noyer-et-noir.html
14.https://www.silvera.fr/eshop/petit-fauteuil-about-a-chair-aac-21-hay-10557-25763.html
15.https://www.silvera.fr/eshop/tabouret-haut-about-a-stool-aas-38-h64-hay-6424-10336.html
16.https://www.fleux.com/maison/luminaire/createurs/lampadaire-arum-136-cm-noir.html
17.https://www.silvera.fr/eshop/fauteuil-dapper-lounge-hay-7113-13771.html

HERMINEH
Décoration
Planche Mobilier
Salon et salle à manger
style scandinave épurée et chaleureux

3


7

5


1
4


6
8

2
9



13
14
10

11


16
15

12

17
1.https://www.ikea.com/fr/fr/p/lindbyn-miroir-noir-20458615/
2.https://housedoctor.com/products/floor-lamp-precise-matte-black-206100313
3.7.https://www.oeildujour.com/suspension-carmen-de-harto-90-cm-3-coloris
4.https://housedoctor.com/products/wall-lamp-precise-matte-black-206100312
5.https://www.madeindesign.com/prod-applique-mantis-bs2-schottlander-l-153-cm-reedition-dcw-editions-refmantis-s2.html
6.https://www.ikea.com/fr/fr/p/flottebo-canape-lit-3-places-gunnared-gris-moyen-s39297458/
7.https://www.ikea.com/fr/fr/p/stockholm-miroir-plaque-frene-80404479/
8.https://www.ikea.com/fr/fr/p/vedbo-fauteuil-gunnared-vert-clair-40494250/
9.https://www.ikea.com/fr/fr/p/borgeby-table-basse-plaque-bouleau-70389356/
10.https://www.umbra.com/collections/planters-vases/products/triflora-5-large
11.https://www.laredoute.fr/ppdp/prod-508953932.aspx#searchkeyword=Cache%20pot%20sur%20pieds&shoppingtool=search
12.https://www.ikea.com/fr/fr/p/burvik-table-dappoint-blanc-60340389/
13.https://housedoctor.com/products/lamp-twice-white-203970105
14.https://www.bolia.com/fr-fr/les-produits/21-230-01_00003/?id=21-230-01_00003
15.https://www.boconcept.com/fr-fr/adelaide/4020058D0650136.html#q=table%2Bpliable
16.https://www.boconcept.com/fr-fr/billund/370043000059075.html
17.https://www.ikea.com/fr/fr/p/persisk-hamadan-tapis-poils-ras-fait-main-motifs-divers-70299233/ol=search

Vous pouvez choisir, en option, la réalisation d’un shopping liste avec plusieurs choix par produit (150€).
Tarif pour la visite conseil déco:
Pour une pièce simple 250€.
Pour une pièce double ou technique (cuisine et salle de bains) 350€.

Prestation de décoration d’intérieur
Je vous propose une prestation complète pour optimiser votre espace de vie, je vous apporte des conseils pour réorganiser vos pièces et contribuer à votre bien-être.
Notre objectif sera d’aménager en harmonie le mobilier et les accessoires afin de mettre en valeur votre lieu de vie et de créer une atmosphère personnalisée et unique.














Déroulé de la prestation :
Au cours d’un premier rendez-vous, je me déplace chez vous pour découvrir le lieu à aménager et à redécorer. Je procède également au relevé des côtes et à la prise de photos.
L’objectif est d’en apprendre davantage sur vos besoins, vos goûts en termes d’ambiance, de couleurs, de matières et d'évaluer votre budget.
A l’issue de ce rendez-vous, je vous fais parvenir un compte-rendu et un devis détaillé de la prestation à venir.
1 h 30 à 2 h à votre domicile.
Ce RDV est facturé 120 €. (déductible à l'acceptation de devis)

Une fois le devis accepté, je commence mes recherches pour faire des propositions, afin d’affiner vos envies, le choix du style, les couleurs et matériaux, et être sûre d’avoir bien compris vos goûts et vos attentes.
Un deuxième rendez-vous nous permettra de confirmer vos idées et valider avec vous les pistes préférées et privilégiées.
A la suite de ce RDV, je vous fournirai votre projet définitif qui comportera :
Tarif sur devis (le tarif tiendra notamment compte de la surface des espaces à travailler ainsi que de leur complexité d’agencement).

Contactez-moi
Hermineh MORADIAN
46 rue Raspail
94140 ALFORTVILLE