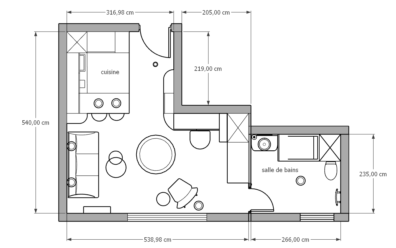
Studio moderne et élégant

Avec des espaces définis et une circulation fluide, ce studio présente un espace de vie avec un élégant canapé lit, une petite cuisine fonctionnelle et un coin de repas; ainsi qu’un meuble multifonctionnel sur-mesure, permettant des espaces de rangements, un bureau et un meuble TV intégré.

Suivant
Suivant

Projet Paris 13