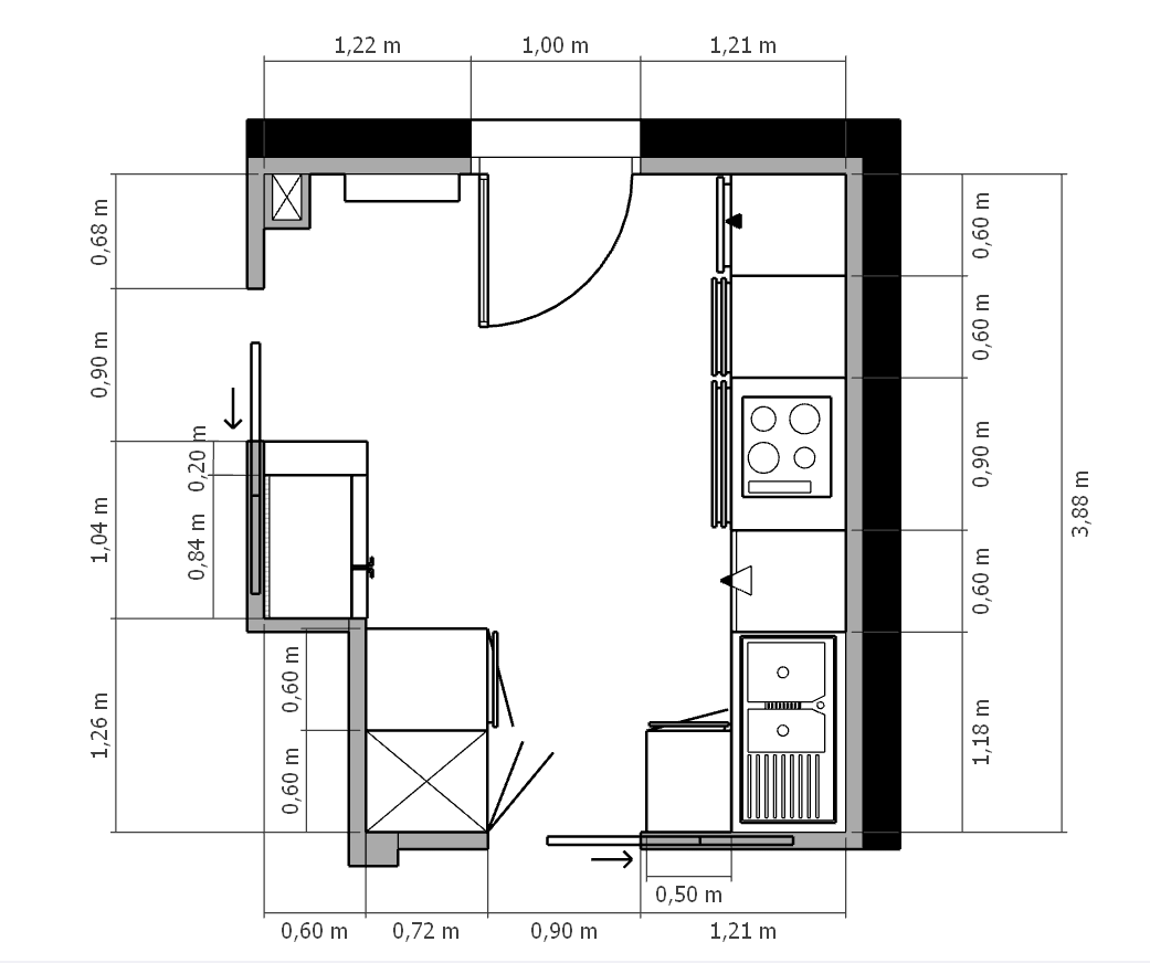
Cuisine épurée et contemporaine

La combinaison de façades en bois clair pour les meubles hauts et de gris anthracite pour les meubles bas crée une cuisine contemporaine. La crédence en marbre apporte une touche d’élégance à cet espace épuré et fonctionnel.

Précédent
Précédent

Projet Paris 1

Suivant
Suivant

Projet Maison-Alfort