Espace de vente de bijoux, style industriel chic
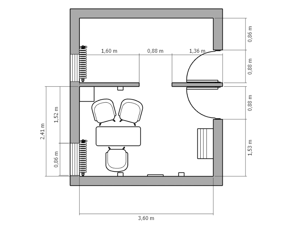
Aménagement d’un espace de vente, composé d’un présentoir pour bijoux, d’étagères murales de style industriel et d’un espace bureau élégant : idéal pour recevoir les clients.
Aménagement d’un espace de vente, composé d’un présentoir pour bijoux, d’étagères murales de style industriel et d’un espace bureau élégant : idéal pour recevoir les clients.